OFFICE PORTA CABIN
Durable, modern porta cabins MODEL NO SBT01
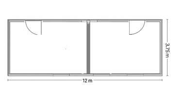
PORTA CABIN OFFICE
SIZE L12 X W3.75 X H2.5 METERS
ROOMS 1 OFFICE ROOM
TIOLETS N/A
WEIGHT 6 TONS


MATERIAL
STRUCTURE HEAVY DUTY MILD STEEL BACE FRAME & ANTI CORRISION PAINTED
WALLS OUT SIDE SHINKO FIRATED SHEET INSIDE 1 INCH INSULATION HIGH QUALITY INSULATION SUPNCH AND THEN PVC DECORE
ROOF OUT SIDE SHINKO IN SIDE 1 INCH SUPNCH INSULATION WITH ALUMINIUM & INSTALLED SEELING TILES 60 X 60 WITH CHENNAL
FLOOR JESSER BASE FRAME WITH 18 MM CEMENT BOARD AND + VENYL FLOORING SHEET 2 MM
ELECTRICAL FITTINGS ALL INSIDE THE WALLS WITH PVC PROTECTRD PIPE 2 LIGHTS , 2 SOCKETS AND 1 AIR CONDITION SOCKET WITH WINDOW AIR CONDITION SPACE
1DOOR & 2 WINDOWS ALUMINIUM STANDRED SIZE INSTALLE
TERMS & CONDITIONS
DELIVERY TIME 7 DAYS
PAYMENT AFTER DELIVERY FIRST TIME
PO ISSUE BEFORE DELIVERY
VAT INVOICE AFTER PAYMENT & DELIVERY
CONTACT 0508202459
EMAIL sbt.services7@outlooK.COM
what's app 0508202459
Tel 0572065269
PRICE (17,500 SAR)
DELIVERY CHARGES (3,500 SAR)
PAYMENT AFTER DEIVER




OFFICE PORTA CABIN
MODEL NO SBT02
PORTA CABIN OFFICE 2 Rooms
SIZE L 12 X W 3.75 X H 2.5
ROOMS 2 ROOMS
TIOLET N/A
WEIGHT 6 TON
MATERIAL
STRUCTURE HEAVY DUTY MILD STEEL BACE FRAME & ANTI CORRISION PAINTED
WALLS OUT SIDE SHINKO FIRATED SHEET INSIDE 1 INCH INSULATION HIGH QUALITY INSULATION SUPNCH AND THEN PVC DECORE
ROOF OUT SIDE SHINKO IN SIDE 1 INCH SUPNCH INSULATION WITH ALUMINIUM & INSTALLED SEELING TILES 60 X 60 WITH CHENNAL
FLOOR JESSER BASE FRAME WITH 18 MM CEMENT BOARD AND + VENYL FLOORING SHEET 2 MM
ELECTRICAL FITTINGS ALL INSIDE THE WALLS WITH PVC PROTECTRD PIPE 2 LIGHTS , 2 SOCKETS AND 1 AIR CONDITION SOCKET WITH WINDOW AIR CONDITION SPACE
2DOOR & 2 WINDOWS ALUMINIUM STANDRED SIZE INSTALLED
TERMS & CONDITIONS
DELIVERY TIME 7 DAYS
PAYMENT AFTER DELIVERY FIRST TIME
PO ISSUE BEFORE DELIVERY
VAT INVOICE AFTER PAYMENT & DELIVERY
CONTACT 0508202459
EMAIL sbt.services7@outlook.com
what's app 0508202459
Tel 0572065269
PRICE (17,500 SAR)
DELIVERY CHARGES (3,500 SAR)
PAYMENT AFTER DEIVERY






MATERIAL
STRUCTURE HEAVY DUTY MILD STEEL BACE FRAME & ANTI CORRISION PAINTED
WALLS OUT SIDE SHINKO FIRATED SHEET INSIDE 1 INCH INSULATION HIGH QUALITY INSULATION SUPNCH AND THEN PVC DECORE
ROOF OUT SIDE SHINKO IN SIDE 1 INCH SUPNCH INSULATION WITH ALUMINIUM & INSTALLED SEELING TILES 60 X 60 WITH CHENNAL FLOOR JESSER BASE FRAME WITH 18 MM CEMENT BOARD AND + VENYL FLOORING SHEET 2 MM
ELECTRICAL FITTINGS ALL INSIDE THE WALLS WITH PVC PROTECTRD PIPE 2 LIGHTS , 2 SOCKETS AND 1 AIR CONDITION SOCKET WITH WINDOW AIR CONDITION SPACE 3DOOR & 2 WINDOWS ALUMINIUM STANDRED SIZE INSTALLE
TERMS & CONDITIONS
DELIVERY TIME 7 DAYS PAYMENT AFTER DELIVERY FIRST TIME PO ISSUE BEFORE DELIVERY VAT INVOICE AFTER PAYMENT & DELIVERY
CONTACT 0508202459 EMAIL sbt.services7@outlookcom what's app 0508202459 Tel 0572065269
PRICE ( 17500 SAR ) DELIVERY CHARGES (3,500) PAYMENT AFTER DELIVERY


PORTA CABIN 3 ROOMS
MODEL NO SBT03
SIZE L 12 W 3.75 H 2.5
ROOMS 3 ROOMS
TIOLET N/A
WEIGTH 6 TONS


Site Office
Sturdy, modern offices tailored for your worksite.
Labor Camps
Comfortable and secure labor camps designed to support your workforce with essential amenities and durable construction.
Container Conversions
Innovative container conversions customized for offices, kitchens, or guard rooms, blending functionality with modern design.


PORTABLE TIOLET 1 X 2 METERS
1 CAMOD , 1 WASH BASIN , SEPTIC TANK, WATER TANK
5500 SR




Guard Room Cabin 4 X 3 METERS
1 DOOR , 1 WINDOW , WINDOW AC SPACE WITH ELECTRICAL LIGHTS AND FITTINGS
7500 SR
PORTABLE TIOLET 1 X 2 METERS
1 CAMOD , WASH BASIN, SEPTIC TANK & WATER TANK
4000 SR






PORTABLE TOILET 6 X 4 METERS
5 tiolets 5 wash basin , 5000 liters septic tank down side installed
25500 SR
GUARD HOUSE 4 X 3 METERS
1 DOOR AND 2 WINDOWS PERFECT FOR SECURTY ARAMCO STANDARD
9500 SR
PORTA CABIN 6 X 4 METERS
PORTA CABIN 6 X 4 METERS OFFICE ARAMCO STANDRES
12500 SR


PORTABLE TIOLET 1 X 2 METERS
1 CAMOD , 1 WASH BASIN , SEPTIC TANK, WATER TANK
5500 SR




Guard Room Cabin 4 X 3 METERS
1 DOOR , 1 WINDOW , WINDOW AC SPACE WITH ELECTRICAL LIGHTS AND FITTINGS
7500 SR
PORTABLE TIOLET 1 X 2 METERS
1 CAMOD , WASH BASIN, SEPTIC TANK & WATER TANK
4000 SR






PORTABLE TOILET 6 X 4 METERS
5 tiolets 5 wash basin , 5000 liters septic tank down side installed
25500 SR
PORTABLE COFFEE SHOP CONTAINER
PORTA COFFEE SHOP CONTAINER HIGH QUALITY 7 X 4 METERS
19000 SR
SPLIT AC 1.5 TONS 2 YEARS WARRANTY
SPLIT AC INSTALLATION IN PORTA CABIN
2800 SR

